— Speculative HQ

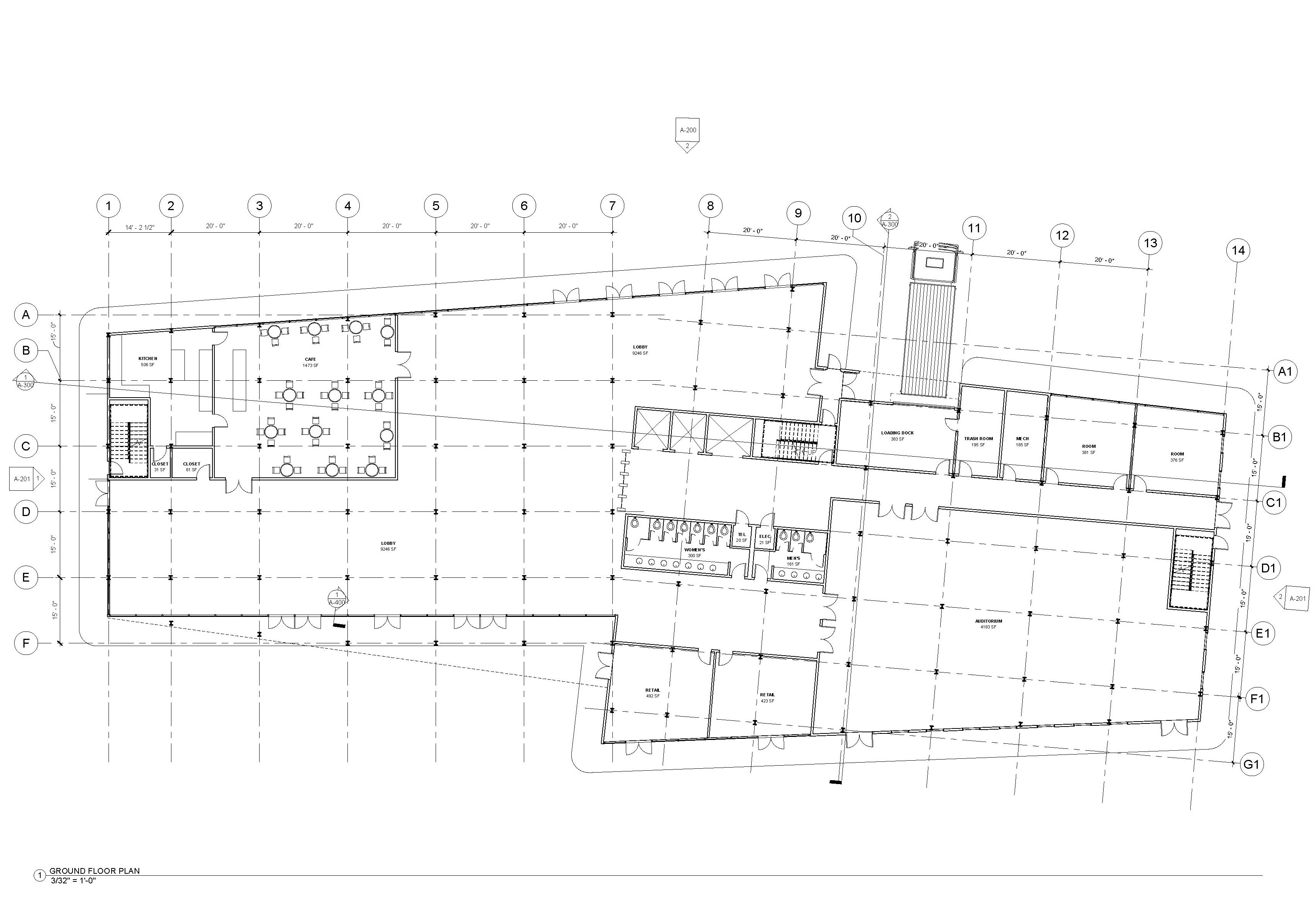
Located in Quonset, Rhode Island, this project focused on the design of a +/- 60,000 gross sq ft speculative office building with an emphasis on the circulation system, structure, and its environmental systems. The first floor accommodates commercial spaces, main lobby, cafe, and loading dock. The rest of the “net” space made is devoted to open office layouts for a multi-tenant building. Working with a given building system, we were constrained by its structure: a steel frame with a rain-screen skin enclosure and centralized core.
We researched zoning codes through IBC, RIBC, and QBPDP. After multiple iterations of massing, we arrived at a 3-story office building with rain screen baguettes heavily used on the south facade for shading with a higher concentration of glazing on the northern facade for natural lighting penetration.
Click here for full drawing set.








